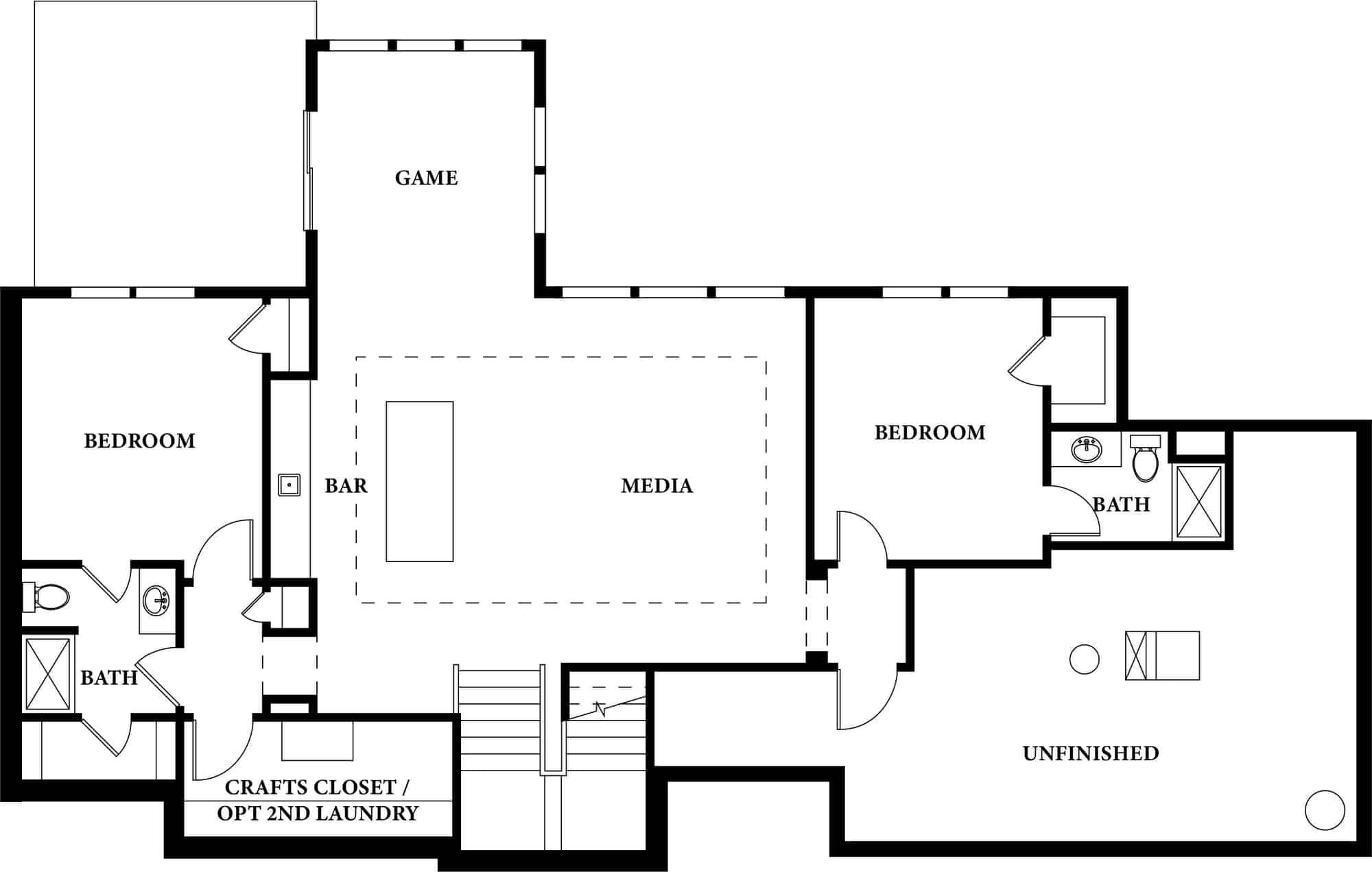
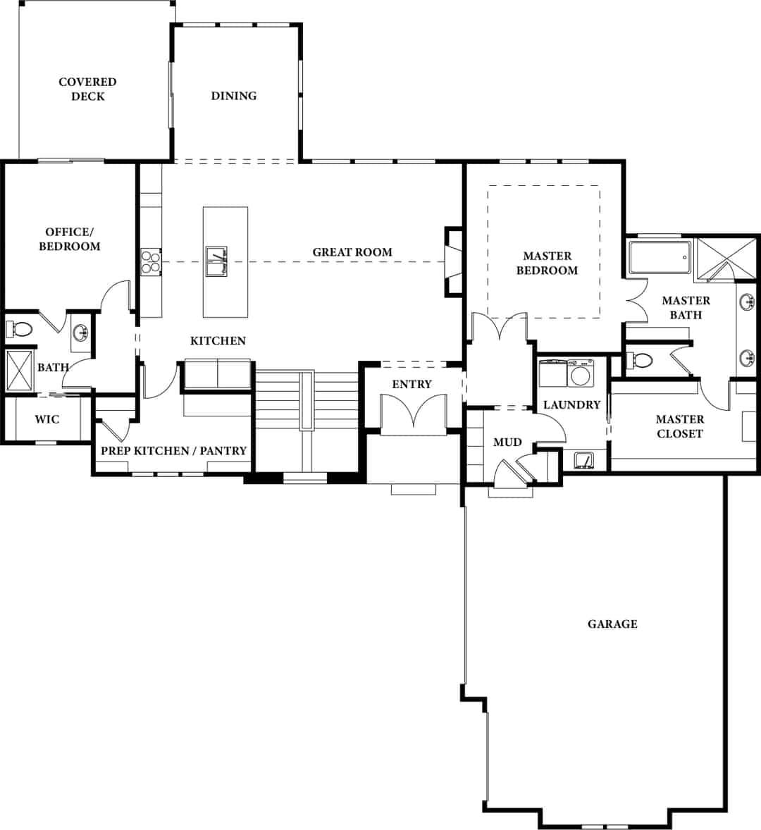
Floor Plan Detail

The Monaco

Bedrooms: 4
Baths Full: 4
Garages: 3
Builder: Dusty Rhodes Homes
  • Back to Floor Plans
  • Inquire about
    Floor Plan


  • CREEKMOOR

    Neighborhoods

    CREEKMOOR

    Area Links