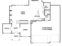
Floor Plan Detail

The Hearthbrook

Approx. SQ FT: 3052
Bedrooms: 4
Baths Full: 3 Half: 1
Garages: 4
Builder: SAB Homes, Inc.
  • Back to Floor Plans
  • Inquire about
    Floor Plan


  • CREEKMOOR

    Neighborhoods

    CREEKMOOR

    Area Links